
Lot 4 NE Judd Parkway
Form Based Zoning - Versatile space, offering multiple permitted uses: Perfect for retail, grocery, restaurants, insurance company, attorneys, accountants, dentists, coffee shops, entertainment, fitness & office space.
Multi-use development at the demographic center of Fuquay-Varina, NC, with convenient access from 401, I-40, Highway 55, US Highway 1 and the new I-540 future development.
Attractive, four-story brick mixed use 21,000+ square foot building
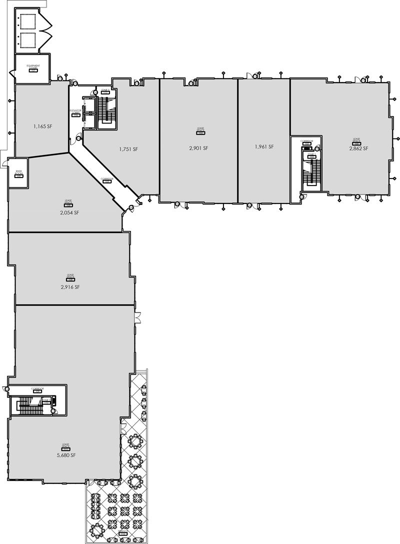
Approximately 8 units
All Units Approximate Size – currently units can be modified to scale up or down
Unit A: 2,862 sf
Unit B: 1,961 sf
Unit C: 2,901 sf
Unit D: 1,751 sf
Unit E: 1,165 sf
Unit F: 2,054 sf
Unit G: 2,916 sf
Unit H: 5,680 sf
Only minutes from Holly Springs, Garner, Raleigh, and under 30 miles to Research Triangle Park and RDU, Bengal Towne Centre is positioned in an unparalleled location. With close proximity to RDU International Airport and other key access points along the I-40 corridor, tenants, owners and visitors will be thrilled with their commutes and ability to access the best dining, shopping and services the area has to offer. High visibility building located on N Judd Parkway between 401 and HWY 55. Many amenities located nearby including US Post Office, Restaurants, Banks, Pharmacy, Fuquay-Varina Town Hall and both historic downtowns.